產品介紹
歐標電動雙梁橋式起重機設計緊湊,自重輕,輪壓小,載荷分布均勻,可以讓客戶節省可觀的投資,并大大提高有效的工作空間。它不但安全可靠,并且在設計上符合人體工程學,操作簡便,安全舒適,讓物料輸送更便捷高效。有很多配量選項可供客戶選擇,如起升變頻、葫雙、遙控控制等,以滿足各種工況或物流輸送的需求。
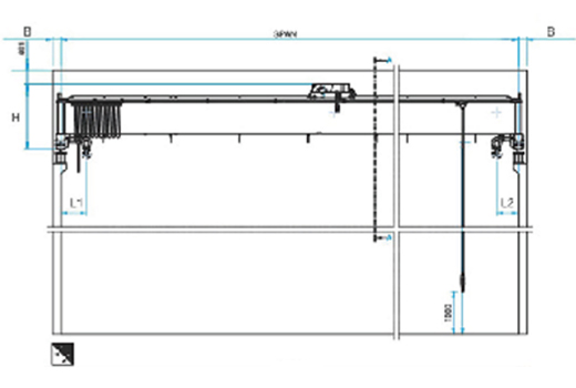
歐標電動雙梁橋式起重機
C 噸位120噸、跨度30米
.起升重量大、凈空低、輪壓小運行平穩
●定位快捷、 工程學設計、操作舒適
(經過嚴格測試、使用壽命長、維護量小
(安全可靠、提高生產效率、創造更大收益

| 起重量 | 跨度 | 起升高度 | 工作級別 | 起升速度 | 基本尺寸(mm) | 小車自重 | 整車自重 | 軌道推薦 | 總功率 | 最大壓輪 | ||||||
| t | m | m | GB | m/min | H | B | L1 | L2 | W | L | BH | t | t | KW | KN | |
| 5 | 10.5 | 9 | A5 | 5/0.83 | 1050 | 90 | 850 | 800 | 2700 | 3026 | 130 | 0.35 | 3.5 | P24 | 7.1 | 36.6 |
| 13.5 | 1100 | 90 | 2700 | 3056 | 130 | 4.6 | 7.1 | 40.2 | ||||||||
| 16.5 | 1130 | 90 | 2700 | 3116 | 130 | 5.7 | 7.1 | 42.9 | ||||||||
| 19.5 | 1160 | 90 | 3100 | 3550 | 130 | 6.7 | 7.1 | 45.3 | ||||||||
| 22.5 | 1200 | 90 | 3800 | 4230 | 130 | 9.6 | 7.8 | 48.8 | ||||||||
| 25.5 | 1250 | 141 | 3800 | 4310 | 220 | 12.6 | 7.8 | 56.2 | ||||||||
| 28.5 | 1350 | 141 | 4500 | 5010 | 220 | 14.6 | 7.8 | 61 | ||||||||
| 31.5 | 1450 | 141 | 5000 | 5584 | 220 | 16.5 | 9.6 | 66 | ||||||||
| 10 | 10.5 | 9 | A5 | 5/0.83 | 1100 | 129 | 850 | 800 | 2700 | 3166 | 130 | 0.67 | 4.6 | P24 | 12.3 | 63 |
| 13.5 | 1150 | 129 | 2700 | 3176 | 130 | 6 | 12.3 | 69 | ||||||||
| 16.5 | 1200 | 129 | 2700 | 3210 | 130 | 7.5 | 12.3 | 74.5 | ||||||||
| 19.5 | 1250 | 129 | 3100 | 3610 | 130 | 10.1 | 12.3 | 79.1 | ||||||||
| 22.5 | 1300 | 129 | 3800 | 4310 | 130 | 11.5 | 13.1 | 84 | ||||||||
| 25.5 | 1400 | 241 | 3800 | 4310 | 220 | 14.4 | 13.1 | 90.1 | ||||||||
| 28.5 | 1500 | 260 | 4500 | 5010 | 220 | 18.1 | 13.1 | 97.6 | ||||||||
| 31.5 | 1600 | 260 | 5000 | 5624 | 220 | 22.1 | 14.5 | 109 | ||||||||
| 16 | 10.5 | 9 | A5 | 5/0.83 | 1280 | 255 | 1000 | 1000 | 3007 | 3423 | 130 | 1.2 | 6.1 | P24 | 22.2 | 47.6 |
| 13.5 | 1380 | 255 | 3033 | 3483 | 130 | 7.8 | 22.5 | 50.7 | ||||||||
| 16.5 | 1480 | 255 | 3056 | 3506 | 130 | 9.4 | 22.5 | 53.4 | ||||||||
| 19.5 | 1580 | 255 | 3077 | 3527 | 130 | 11.1 | 22.5 | 56.7 | ||||||||
| 22.5 | 1680 | 255 | 3312 | 3762 | 130 | 13.9 | 22.5 | 59.1 | ||||||||
| 25.5 | 1780 | 271 | 3650 | 4100 | 220 | 16.2 | 23.9 | 62.9 | ||||||||
| 28.5 | 1880 | 271 | 4472 | 4982 | 220 | 18.9 | 23.9 | 67.2 | ||||||||
| 31.5 | 1980 | 271 | 5048 | 5998 | 220 | 23.9 | 23.9 | 73.6 | ||||||||
| 20 | 10.5 | 9 | A4/A5 | 5/0.83 | 1400 | 155 | 1000 | 1000 | 2986 | 3402 | 130 | 1.3 | 6.3 | P30 | 23.2 | 60.2 |
| 13.5 | 1500 | 155 | 3006 | 3456 | 130 | 7.9 | 23.2 | 63.5 | ||||||||
| 16.5 | 1600 | 155 | 3025 | 3476 | 130 | 9.8 | 23.2 | 66.6 | ||||||||
| 19.5 | 1700 | 163 | 3547 | 4057 | 130 | 13.6 | 24.6 | 70.7 | ||||||||
| 22.5 | 1800 | 163 | 3589 | 4099 | 130 | 15.8 | 24.6 | 74.3 | ||||||||
| 25.5 | 1850 | 163 | 3608 | 4118 | 220 | 18.3 | 24.6 | 77.7 | ||||||||
| 28.5 | 1900 | 271 | 4430 | 4980 | 220 | 21.1 | 26.2 | 82 | ||||||||
| 31.5 | 1950 | 271 | 5000 | 5550 | 220 | 25.4 | 26.2 | 87.8 | ||||||||
| 25 | 10.5 | 9 | A5 | 4/0.7 | 1600 | 155 | 1000 | 1000 | 3264 | 3741 | 130 | 2 | 7.4 | P30 | 36.6 | 72.8 |
| 13.5 | 1650 | 155 | 3480 | 3990 | 130 | 9.7 | 36.6 | 76.6 | ||||||||
| 16.5 | 1700 | 155 | 3496 | 4006 | 130 | 11.7 | 38.2 | 80 | ||||||||
| 19.5 | 1800 | 155 | 3527 | 4037 | 130 | 14.1 | 38.2 | 83.7 | ||||||||
| 22.5 | 1950 | 155 | 3545 | 4055 | 130 | 19.9 | 38.2 | 86.5 | ||||||||
| 25.5 | 2000 | 160 | 3961 | 4511 | 220 | 24.2 | 40.2 | 91.3 | ||||||||
| 28.5 | 2050 | 160 | 4769 | 5393 | 220 | 30.9 | 40.2 | 96.8 | ||||||||
| 31.5 | 2150 | 160 | 4982 | 5606 | 220 | 25.4 | 40.2 | 118.5 | ||||||||
| 40 | 10.5 | 9 | A4/A5 | 4/0.7 | 1800 | 155 | 1200 | 1200 | 3454 | 3964 | 130 | 2.7 | 9.3 | P41 | 45 | 108.4 |
| 13.5 | 1850 | 155 | 3467 | 3977 | 130 | 10.5 | 45 | 113.3 | ||||||||
| 16.5 | 1900 | 155 | 3569 | 4153 | 130 | 13.4 | 45 | 117.6 | ||||||||
| 19.5 | 2000 | 155 | 3908 | 4492 | 130 | 16.1 | 45 | 122.7 | ||||||||
| 22.5 | 2050 | 155 | 3924 | 4548 | 130 | 19.1 | 45 | 127.1 | ||||||||
| 25.5 | 2120 | 171 | 3941 | 4656 | 220 | 22.9 | 45 | 129.7 | ||||||||
| 28.5 | 2170 | 171 | 4496 | 5120 | 220 | 26.5 | 45 | 134.2 | ||||||||
| 31.5 | 2250 | 171 | 5154 | 6086 | 220 | 33.1 | 47 | 142.3 | ||||||||
| 50 | 10.5 | 9 | A5 | 4/0.7 | 1900 | 163 | 1300 | 1300 | 3569 | 4153 | 150 | 3 | 9.5 | P43 | 45 | 140.3 |
| 13.5 | 1950 | 163 | 3569 | 4153 | 150 | 11.9 | 45 | 145.6 | ||||||||
| 16.5 | 2000 | 163 | 3569 | 4153 | 150 | 14.6 | 45 | 149.5 | ||||||||
| 19.5 | 2100 | 163 | 3896 | 4520 | 150 | 17.9 | 45 | 146.5 | ||||||||
| 22.5 | 2150 | 163 | 4378 | 4520 | 150 | 22.3 | 45 | 153.5 | ||||||||
| 25.5 | 2200 | 171 | 4354 | 5170 | 220 | 25 | 47 | 156.6 | ||||||||
| 28.5 | 2250 | 171 | 4678 | 5610 | 220 | 34 | 47 | 165.2 | ||||||||
| 31.5 | 2400 | 171 | 5154 | 6086 | 220 | 37.6 | 47 | 172 | ||||||||